Details

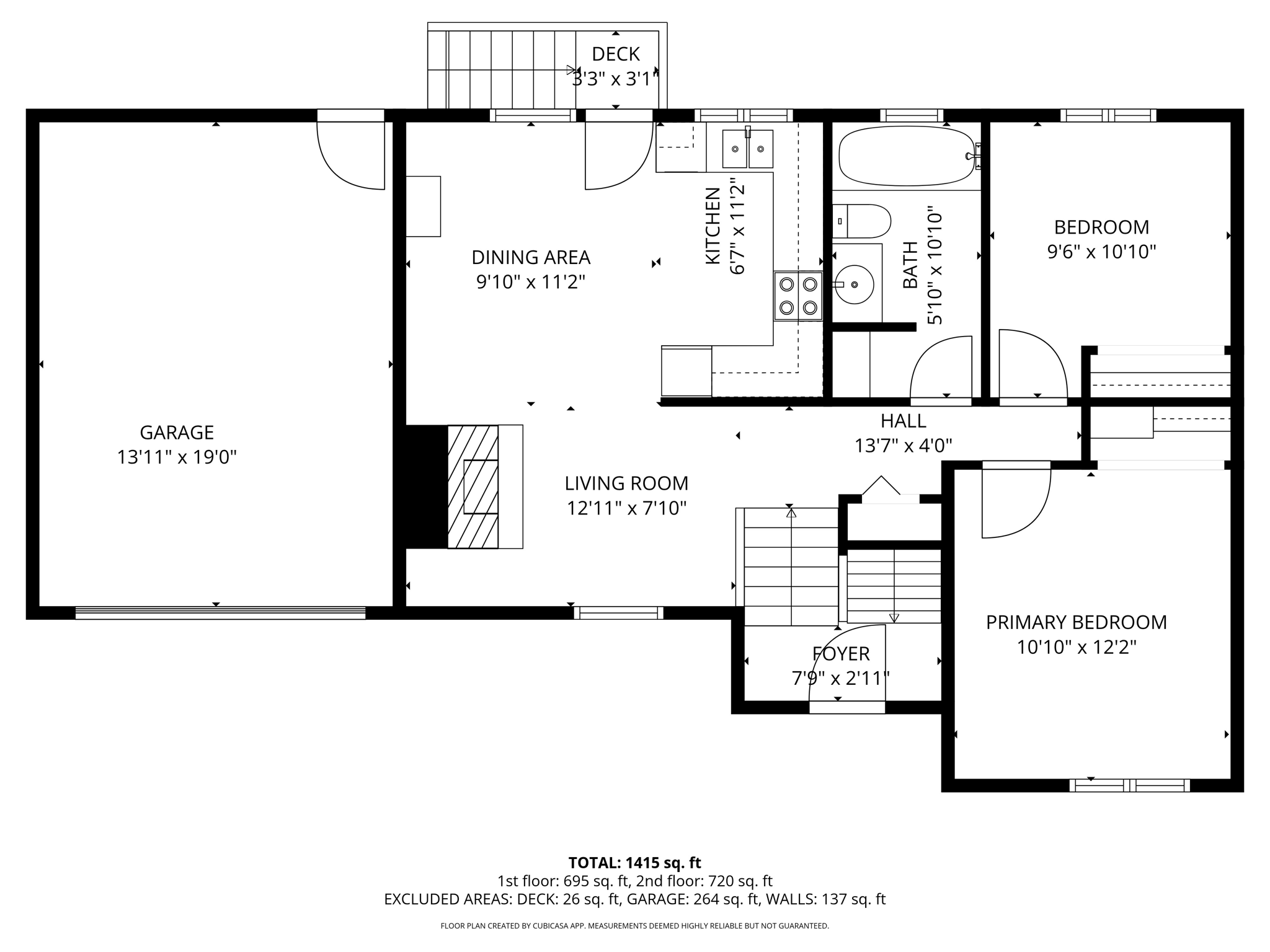
Welcome to 10812 Ingalls Cir in the desirable Sheridan Green subdivision of Westminster, CO. This 4-bedroom home with an additional office/den and 1.5 bathrooms offers slightly over 1,600 square feet of living space and incredible potential for the right buyer. The bi-level layout provides a functional and flexible floor plan to fit a variety of needs. As you enter the home, head upstairs to the inviting living room featuring a cozy fireplace, perfect for chilly Colorado evenings, and a large window that fills the space with natural light. The dining room flows seamlessly from the living area and connects to the vintage kitchen, ready for your personal touch. The upper level also includes a full bathroom conveniently located near the primary bedroom and a secondary bedroom. Downstairs, you’ll find a second living area along with two additional bedrooms, a half bathroom, and a versatile bonus room ideal for a home office, den, game room, or small workout space. The laundry room is also located on the lower level for added convenience. Situated on a large corner lot, the property features mature trees, a storage shed, and endless possibilities to create your dream outdoor space. Located within walking distance to the local elementary school and just minutes from Westminster City Park, the recreation center, shopping, dining, and more, this home offers both location and opportunity. With a furnace that is only 2 years old and plenty of room to build equity, this property is perfect as an investment, rental, or a future dream home with a little TLC.

  • $439,900
  • 4 Bedrooms
  • 2 Bathrooms
  • 1,601 Sq/ft
  • Lot 0.02 Acres
  • 2 Parking Spots
  • Built in 1977
  • MLS: 2592060

Images

Floor Plans