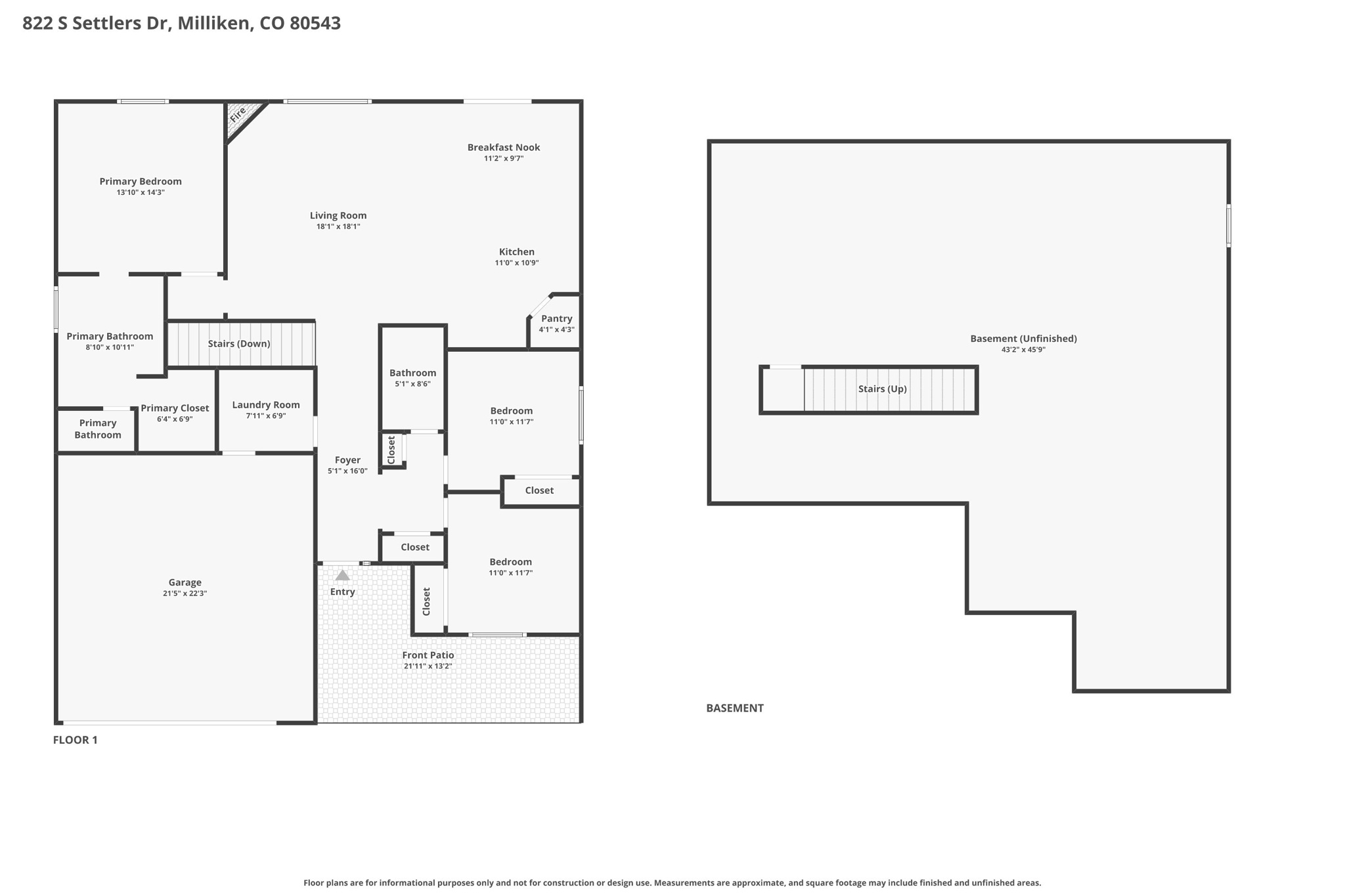
All levels
Main level
Lower level
All levels
Main level
Lower level